Information sur les taux fixes du Fonds pour l’accessibilité
Sur cette page
- Liste des figures
- Description des taux fixes pour les projets de construction
- Comment fonctionnent les coûts à taux fixes
- Quelle incidence aura l'emplacement du projet sur les montants de financement
- Planification et budget d'urgence du projet
- Rampes
- Portes accessibles
- Toilettes accessibles
- Plateformes élévatrices accessibles
- Ascenseurs
- Lève-personne pour piscine
- Des environnements multisensoriels
- Aires de jeux accessibles
- Stationnement accessible
- Aires de débarquement accessibles
- Stations de recharge accessibles pour les véhicules électriques
- Cuisines accessibles
- Fontaines d'eau accessibles et stations de lavage des mains accessibles
- Salles multifonctionnelles accessibles
Formats substituts
Les formats en gros caractères, braille, MP3 (audio), texte électronique, et DAISY sont disponibles sur demande en commandant en ligne ou en composant le 1 800 O-Canada (1-800-622-6232). Si vous utilisez un téléscripteur (ATS), composez le 1-800-926-9105.
Liste des figures
- Figure 1 : Rampes
- Figure 2 : Portes accessibles
- Figure 3 : Toilette accessible à occupant unique – Plan général
- Figure 4 : Hauteur des accessoires dans la salle de toilette
- Figure 5 : Toilettes dotées de plusieurs cabines, dont une cabine accessible – Plan général
- Figure 6 : Cabine accessible – Plan général
- Figure 7 : Cabine de douche accessible en fauteuil roulant - Plan général
- Figure 8 : Choisir entre une plateforme élévatrice et un ascenseur en tenant compte de ses besoins en matière d'accessibilité
- Figure 9 : Choisir une plateforme élévatrice en tenant compte de ses besoins en matière d'accessibilité
- Figure 10 : Plateforme élévatrice inclinée
- Figure 11 : Plateforme élévatrice verticale (avec enceinte)
- Figure 12 : Choisir un ascenseur en tenant compte de ses besoins en matière d'accessibilité
- Figure 13 : Ascenseur à usage limité/utilisation limitée
- Figure 14 : Ascenseur hydraulique
- Figure 15 : Ascenseur à traction
- Figure 16 : Choisir un lève-personne pour piscine en tenant compte de ses besoins en matière d'accessibilité
- Figure 17 : Lève-personne pour piscine hors terre
- Figure 18 : Lève-personne permanent pour piscine creusée
- Figure 19 : Choisir un espace multisensoriel en tenant compte de ses besoins en matière d'accessibilité
- Figure 20 : Pièce offrant un environnement multisensoriel
- Figure 21 : Station mobile multisensorielle
- Figure 22 : Choisir une aire de jeux accessible en tenant compte de ses besoins en matière d'accessibilité
- Figure 23 : Aire de jeux accessible – petite
- Figure 24 : Aire de jeux accessible – moyenne
- Figure 25 : Aire de jeux accessible – grande
- Figure 26 : Stationnement accessible – unique – inférieur au niveau du sol
- Figure 27 : Stationnement accessible – multiple – inférieur au niveau du sol
- Figure 28 : Stationnement accessible – inférieur au niveau du sol et au niveau du sol
- Figure 29 : Aires de débarquement accessibles
- Figure 30 : Station de recharge accessible pour les véhicules électriques – borne unique – au niveau du sol
- Figure 31 : Station de recharge accessible pour les véhicules électriques – bornes multiples – au niveau du sol
- Figure 32 : Station de recharge accessible pour les véhicules électriques – borne unique – inférieure au niveau du sol
- Figure 33 : Station de recharge accessible pour les véhicules électriques – bornes multiples – inférieure au niveau du sol
- Figure 34 : Cuisine accessible – Plan général
- Figure 35 : Schéma d’une cuisine accessible
- Figure 36a : Cuisine accessible - hauteurs et dégagements
- Figure 36b : Cuisine accessible – hauteurs et dégagements
- Figure 37 : Fontaine intérieure - murale versus autonome
- Figure 38 : Fontaine intérieure - fontaine avec station de remplissage de bouteille versus station de remplissage de bouteille seule
- Figure 39 : Fontaine extérieure - fontaine avec station de remplissage de bouteille versus fontaine seule
- Figure 40 : Fontaine extérieure - fontaine d'eau avec station de remplissage de bouteille et bassin pour les animaux d'assistance
- Figure 41 : Station de lavage des mains
- Figure 42 : Salle multifonctionnelle accessible – Plan général
Description des taux fixes pour les projets de construction
Lorsque vous faites une demande au Fonds pour l'accessibilité, une calculatrice interactive vous guide au travers d'une série d'options pour vous aider à déterminer le montant de financement admissible pour :
- les rampes;
- les portes accessibles;
- les toilettes accessibles;
- les plateformes élévatrices accessibles;
- les ascenseurs;
- les lève-personnes pour piscine;
- les environnements multisensoriels;
- les aires de jeux accessibles;
- les stationnements accessibles;
- les aires de débarquement accessibles;
- les bornes de recharge accessibles pour les véhicules électriques;
- les cuisines accessibles;
- les fontaines d'eau accessibles et stations de lavage des mains accessibles;
- les salles multifonctionnelles accessibles.
Comment fonctionnent les coûts à taux fixes
Les coûts à taux fixes tiennent compte de nombreux facteurs, notamment :
- les articles essentiels et les composantes nécessaires pour répondre aux normes d'accessibilité;
- la juste valeur marchande du matériel et de la main-d'œuvre;
- les matériaux de construction qui sont d'une qualité commerciale standard;
- l'emplacement du projet;
- les permis nécessaires et les honoraires professionnels.
Quelle incidence aura l'emplacement du projet sur les montants de financement
Le taux fixe ajuste les coûts en fonction de l'emplacement du projet. Cette analyse comprend l'éloignement du lieu de projet ou la difficulté d'y accéder.
Planification et budget d'urgence du projet
Le taux fixe calculera les coûts admissibles pour chaque projet. Toutefois, les situations et les coûts imprévus sont chose courante avec les projets de construction. Nous vous conseillons de consulter des professionnels certifiés pour déterminer l'ampleur de votre projet. Nous vous recommandons aussi de prévoir un budget d'urgence correspondant à environ 20 % du coût total du projet afin de compenser les coûts imprévus.
Veuillez noter : Des enjeux relatifs à la chaîne d'approvisionnement et la pénurie de main-d'œuvre peuvent entraîner des répercussions sur les projets de construction qui dépassent les normes habituelles de l'industrie. Au moment de planifier votre projet d'accessibilité, il est recommandé de faire preuve d'une plus grande diligence raisonnable en confirmant les échéances, la portée et les coûts du projet auprès de professionnels agréés.
Rampes
Figure 1 : Rampes
- Source : Figure 34 a), CSA/ASC B651 : 23 Conception accessible pour l'environnement bâti. © 2023 Association canadienne de normalisation.
Figure 1 – Version textuelle
- La rampe commence à la hauteur de l'entrée de la porte. Une première pente descend jusqu'à un palier. Elle fait un angle de 90 degrés pour descendre une deuxième pente et aboutit à un palier de niveau.
- Des dispositifs de sécurité se trouvent le long de la rampe pour aider les personnes à monter et descendre la rampe en sécurité, notamment :
- des bordures;
- des garde-corps;
- des mains courantes;
- des lattes verticales;
- des bandes de guidage.
Une rampe est une pente ou une inclinaison qui relie 2 niveaux différents, à l'entrée ou entre les étages d'un bâtiment. Les rampes permettent aux fauteuils roulants et autres aides à la mobilité d'accéder plus facilement à un bâtiment, ou de naviguer entre des zones de hauteur différente. Le long de la rampe, il y a des éléments de sécurité tels que des bordures, des garde-corps, des mains courantes, des bandes verticales et des bandes de guidage.
Ces éléments permettent aux personnes et monter et descendre la rampe en sécurité. Par exemple, les bandes de guidage indiquent le changement de plancher à l'entrée de la porte et là où la rampe tourne :
- la pente de la rampe ne doit pas dépasser 1:15;
- elle doit avoir une largeur d'au moins 3 pi 7 po (1 200 mm);
- les garde-corps ont une hauteur de 3 pi (915 mm) de haut;
- les lattes verticales sont placées à une distance maximale de 4 po (100 mm).
Les rampes comprennent :
- la rampe et les paliers;
- les bordures, garde-corps, mains courantes et lattes verticales;
- l'ossature;
- les bandes de guidage/de couleur contrastante;
- les fondations.
Élément d'accessibilité facultatif :
- couverture contre les intempéries pour les rampes extérieures.
Portes accessibles
Figure 2 : Portes accessibles

- Source : Figure 23, CSA/ASC B651 : 23 Conception accessible pour l'environnement bâti. © 2023 Association canadienne de normalisation.
Figure 2 – Version textuelle
- Une personne tenant une canne se dirige vers une porte.
- La porte a une largeur minimale de 2 pi 10 po (860 mm). Sa fenêtre vitrée est située à moins de 3 pi (900 mm) du sol. Cela permet d'accroître la visibilité des personnes qui utilisent des appareils fonctionnels, par exemple un fauteuil roulant.
- La porte est munie d'un dispositif automatique et de commandes électriques.
- À l'extérieur, il y a des garde-corps de chaque côté de l'entrée. Il y a un petit bouton-poussoir rectangulaire à la verticale dans le haut du garde-corps qui est du côté droit. Le bouton-poussoir est à 3-3 pi 7 po (de 900 à 1 000 mm) du sol.
- La hauteur du plancher à l'entrée (seuil) ne dépasse pas 0,5 po (13 mm).
Les portes accessibles ont des vitres assez basses pour que les personnes qui utilisent des appareils fonctionnels, comme des fauteuils roulants et des scooters, soient visibles de l'autre côté. Elles sont munies d'un ouvre-porte automatique avec des boutons poussoirs ou des capteurs alimentés à l'électricité. Les commandes sont situées sur un garde-corps ou sur le mur. Les garde-corps, placés de chaque côté de la porte, constituent un élément d'accessibilité et de sécurité facultatif pour les personnes avec une déficience visuelle ou à mobilité réduite. Le fait de peindre la porte ou le cadre de porte dans des couleurs contrastantes aide les personnes qui ont une déficience visuelle à percevoir la profondeur.
Les portes extérieures comprennent :
- une porte isolée avec fenêtre munie d'un vitrage isolant;
- un cadre en acier isolé;
- un ensemble de quincaillerie de porte;
- un dispositif et des commandes automatiques;
- une alimentation électrique;
- de la peinture et des finitions de couleurs contrastantes.
Les portes intérieures comprennent :
- une porte en métal creuse non isolée munie d'un vitrage non isolant;
- un cadre non isolé en acier embouti;
- un ensemble de quincaillerie de porte;
- un dispositif et des commandes automatiques;
- une alimentation électrique;
- de la peinture et des finitions de couleurs contrastant.
Élément d'accessibilité facultatif :
- garde-corps repérable à l'aide d'une canne.
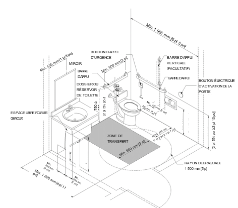
Toilettes accessibles
Figure 3 : Toilette accessible à occupant unique - Plan général
- Source : Figure 49a), CSA/ASC B651 : 23 Conception accessible pour l'environnement bâti. © 2023 Association canadienne de normalisation.
Figure 3 – Version textuelle
- En face de la porte se trouve un lavabo accessible, un meuble-lavabo et un miroir de hauteur accessible. Sous le lavabo, il y a de l'espace pour qu'une personne utilisant un appareil fonctionnel puisse placer ses genoux. Les tuyaux isolés du lavabo protègent les genoux de l'eau chaude qui circule.
- À côté du lavabo, il y a un espace dégagé pour permettre à une personne de quitter son appareil fonctionnel pour le transfert sur la toilette accessible à chasse d'eau manuelle. L'espace dégagé mesure au moins 3 pi sur 5 pi (900 mm sur 1 500 mm).
- La toilette est munie d'un dossier et d'une barre d'appui. Du côté gauche de la toilette, il y a :
- un bouton d'appel d'urgence (facultatif);
- une barre d'appui horizontale;
- une barre d'appui verticale;
- un distributeur de papier hygiénique;
- un bouton électrique d'activation de la porte.
- Les barres d'appui sont à une hauteur variante entre 2 pi 5 po et 2 pi 10 po (750 mm et 850 mm) du plancher et font entre 2 pi et 2 pi 6 po (600 mm et 762 mm) de long.
- Dimensions : 9 pi sur 10 pi 11 po (2 732 mm sur 3 330 mm).
La superficie d'une toilette accessible à occupant unique est d'environ 9 pi sur 10 pi 11 po (2 732 mm sur 3 330 mm). Il y a de l'espace sous le lavabo pour qu'une personne utilisant un appareil fonctionnel puisse placer ses genoux. Les tuyaux isolés du lavabo protègent les genoux de l'eau chaude qui circule. Il y a à côté du lavabo un espace dégagé pour permettre à une personne de quitter son appareil fonctionnel pour le transfert sur la toilette, laquelle a un dossier et est entourée de barres d'appui offrant un soutien. Des murs peints d'une couleur différente que les cadres de porte, le plancher, le mur adjacent ou la plomberie aide les personnes qui ont une déficience visuelle à avoir une perception de la profondeur.
Les toilettes accessibles comprennent :
- une toilette accessible avec 2 barres d'appui;
- un lavabo et un meuble-lavabo accessible avec protection anti-chaleur pour les genoux;
- un miroir en angle accessible;
- des accessoires de salle de toilettes :
- un distributeur de savon;
- un distributeur de papier hygiénique;
- un distributeur de serviettes ou sèche-mains automatique;
- une poubelle pour les serviettes.
- des murs insonorisés et de la peinture de couleurs contrastantes :
- ceci ne comprend pas la construction de nouveaux murs, mais seulement l'insonorisation et de la peinture de couleur contrastantes pour les murs nouveaux ou existants;
- l'insonorisation pour un indice minimum d'ITS 42.Note de bas de page 1
- un plancher antidérapant :
- éblouissement minimal, pas de motif visuel fort;
- couleurs contrastantes par rapport aux murs, portes, etc.
- un système de CVCA optimisé (au-delà des exigences minimales du code) :
- une meilleure qualité de l'air;
- une absorption acoustique pour un indice minimum d'ITS 45 et CAP 40;Note de bas de page 1
- des commandes à hauteur accessible dans la pièce.
- un éclairage optimisé (au-delà des exigences minimales du code) :
- un éclairage anti-éblouissement avec rhéostat;
- des commandes à hauteur accessible dans la pièce.
- des installations électriques optimisées (au-delà des exigences minimales du code) :
- détecteur de présence;
- des prises et circuits de plus grande capacité;
- un minimum de 4 prises doubles dans la pièce.
- signalisation dans la pièce avec texte, pictogramme et braille :
- signalisation unidirectionnelle placée ailleurs pour guider les utilisateurs.
Éléments d'accessibilité facultatifs :
- urinoir accessible;
- bouton d'appel d'urgence;
- table à langer électrique pour adulte;
- douche accessible;
- mécanisme automatique de porte avec commandes et alimentation électrique.
Figure 4 : Hauteur des accessoires dans la salle de toilette

- Source : Figure 44, CSA/ASC B651 : 23 Conception accessible pour l'environnement bâti. © 2023 Association canadienne de normalisation.
Figure 4 – Version textuelle
- À partir de la gauche, une personne en fauteuil roulant utilise le sèche-mains.
- Tous les accessoires de la salle de toilette sont à peu près au niveau de la vue.
- À côté du sèche-mains, il y a un lavabo et un miroir au-dessus. Les tuyaux isolés d'alimentation en eau et d'évacuation du lavabo protègent les personnes en fauteuil contre les blessures lorsque leurs jambes sont sous le lavabo.
- À côté du miroir et du lavabo, il y a :
- un distributeur de savon;
- un distributeur de serviettes;
- une poubelle;
- un distributeur d'articles variés (par exemple, des produits menstruels ou autres articles possibles).
Tous les accessoires de toilettes se trouvent à peu près au niveau de la vue d'une personne en fauteuil roulant. Les tuyaux isolés d'alimentation en eau et d'évacuation du lavabo protègent les personnes en fauteuil roulant contre les blessures aux jambes.
Les accessoires peuvent comprendre :
- un sèche-mains automatique;
- un distributeur de savon;
- un distributeur de serviettes automatique;
- une poubelle;
- un distributeur d'articles variés (par exemple, des produits menstruels).
Figure 5 : Salle de toilettes dotée de plusieurs cabines, dont une cabine accessible - Plan général
- Source : Figure 42, CSA/ASC B651 : 23 Conception accessible pour l'environnement bâti. © 2023 Association canadienne de normalisation.
Figure 5 – Version textuelle
- La forme de la salle de toilettes multicabines a la forme d'un rectangle avec un court couloir menant à une entrée ouverte. L'entrée se trouve dans le coin supérieur droit.
- De l'entrée, on voit 3 lavabos sur la droite et quatre cabines de toilettes en face. Des zones dégagées séparent les lavabos et les cabines. Cela laisse assez de place à une personne utilisant un appareil fonctionnel, comme un fauteuil roulant, pour se déplacer.
- 4 des 5 cabines sont de taille standard et une est accessible, autrement dit plus grande que les autres.
- Les cabines de taille standard ont des portes qui s'ouvrent vers l'intérieur.
- La cabine accessible est dotée :
- d'une porte qui s'ouvre vers l'extérieur munie d'un crochet à vêtement;
- d'une poignée de porte en forme de « D » à l'intérieur et une autre à l'extérieur.
Les dimensions de la salle de toilettes multicabines comportant une cabine accessible est d’environ 90 pi2 (8,4 m2). Il y a des zones dégagées entre les lavabos et les cabines. Cela laisse assez de place à une personne utilisant un appareil fonctionnel, comme un fauteuil roulant, pour se déplacer.
La cabine accessible comporte :
- une porte s'ouvrant vers l'extérieur, qui laisse de la place à une personne utilisant un appareil fonctionnel pour entrer dans la cabine;
- une poignée de porte en forme de « D » à l'intérieur et une autre à l'extérieur.
Les salles de toilettes accessibles comprennent :
- une toilette accessible avec 2 barres d'appui;
- un lavabo et un meuble-lavabo accessible avec protection anti-chaleur pour les genoux;
- un miroir en angle accessible;
- des accessoires de salle de toilettes :
- un distributeur de savon;
- un distributeur de papier hygiénique;
- un distributeur de serviettes ou sèche-mains automatique;
- une poubelle pour les serviettes.
- des murs insonorisés et de la peinture de couleurs contrastantes :
- ceci ne comprend pas la construction de nouveaux murs, mais seulement l'insonorisation et de la peinture de couleur contrastantes pour les murs nouveaux ou existants;
- l'insonorisation pour un indice minimum d'ITS 42.Note de bas de page 1
- un plancher antidérapant :
- éblouissement minimal, pas de motif visuel fort;
- couleurs contrastantes par rapport aux murs, portes, etc.
- un système de CVCA optimisé (au-delà des exigences minimales du code) :
- une meilleure qualité de l'air;
- une absorption acoustique pour un indice minimum d'ITS 45 et CAP 40;Note de bas de page 1
- des commandes à hauteur accessible dans la pièce.
- un éclairage optimisé (au-delà des exigences minimales du code) :
- un éclairage anti-éblouissement avec rhéostat;
- des commandes à hauteur accessible dans la pièce.
- des installations électriques optimisées (au-delà des exigences minimales du code) :
- détecteur de présence;
- des prises et circuits de plus grande capacité;
- un minimum de 4 prises doubles dans la pièce.
- signalisation dans la pièce avec texte, pictogramme et braille :
- signalisation unidirectionnelle placée ailleurs pour guider les utilisateurs.
Éléments d'accessibilité facultatifs :
- urinoir accessible;
- bouton d'appel d'urgence;
- table à langer électrique pour adulte;
- douche sans obstacle;
- mécanisme automatique de porte avec commandes et alimentation électrique.
Figure 6 : Cabine accessible - Plan général
- Source : Figure 46, CSA/ASC B651 : 23 Conception accessible pour l'environnement bâti. © 2023 Association canadienne de normalisation.
Figure 6 – Version textuelle
- La toilette accessible est dotée d'une porte qui s'ouvre vers l'extérieur munie d'une poignée en forme de « D » à l'extérieur. À l'intérieur, il y a aussi une poignée en forme de « D » ainsi qu'un crochet à vêtement et un verrou maniable pour verrouiller la porte.
- La toilette a un dossier et une barre d'appui fixée au mur arrière. Lorsqu'elle s'assoit sur la toilette, une personne peut trouver à sa gauche une barre d'appui en forme de « L » et un porte-papier hygiénique.
- Les barres d'appui sont à une hauteur variante entre 2 pi 5 po et 2 pi 10 po (750 et 850 mm) du plancher et font entre 2 pi et 2 pi 6 po (600 mm et 762 mm) de long.
La cabine accessible a une porte qui ouvre vers l'extérieur avec une poignée en forme de « D » à l'extérieur pour convenir à un large éventail d'utilisateurs, y compris les personnes qui utilisent des appareils fonctionnels.
Figure 7 : Cabine de douche accessible en fauteuil roulant - Plan général

- Source : Figure 51, CSA/ASC B651 : 23 Conception accessible pour l'environnement bâti. © 2023 Association canadienne de normalisation.
Figure 7 – Version textuelle
- Il y a un espace dégagé avec une surface antidérapante avant d'entrer dans la douche. L'espace dégagé mesure au moins 3 pi sur 5 pi (900 mm sur 1 500 mm).
- Une bordure ne faisant pas plus de 0,5 pi (13 mm) de hauteur sépare la douche de la zone dégagée.
- Il y a, à l'intérieur de la douche, 2 barres d'appui offrant un soutien. La première est une barre d'appui verticale fixée à la paroi de gauche. La deuxième est une barre d'appui horizontale fixée à la paroi de droite.
- Il y a aussi un siège rabattable fixé à la paroi de gauche si une personne doit s'asseoir.
- Sur la paroi arrière, il y a :
- un porte-savon encastré;
- une barre d'appui verticale;
- une barre d'appui horizontale;
- une pomme de douche manuelle avec un tuyau flexible.
Les douches accessibles comprennent :
- cabine de douche;
- pomme de douche manuelle et commandes accessibles.
- porte-savon encastré;
- siège rabattable;
- 4 barres d'appui;
- revêtement de sol antidérapant.
Plateformes élévatrices accessibles
Figure 8 : Choisir entre une plateforme élévatrice accessible et un ascenseur en tenant bien compte de ses besoins en matière d'accessibilité

Figure 8 – Version textuelle
Le diagramme pose des questions auxquelles il faut répondre par oui ou non.
Question 1 : Votre projet est-il à l'intérieur ou à l'extérieur?
- S'il s'agit d'un pro jet intérieur, passez à la question 2.
- S'il s'agit d'un projet extérieur :
- une plateforme élévatrice accessible pourrait répondre à vos besoins.
Question 2 : Avez-vous besoin d'accéder à un endroit de plus de 2 étages?
- Si la réponse est « oui » :
- vous serez mieux servi par un ascenseur.
- Si la réponse est « non », passez à la question 3.
Question 3 : Est-ce que plus d'une personne à la fois doit y accéder?
- Si la réponse est « oui » :
- vous serez mieux servi par un ascenseur.
- Si la réponse est « non » :
- une plateforme élévatrice accessible pourrait répondre à vos besoins.
Résultat :
- les ascenseurs sont plus inclusifs que les plateformes élévatrices.
Figure 9 : Choisir une plateforme élévatrice en tenant compte de ses besoins en matière d'accessibilité

Figure 9 – Version textuelle
Le diagramme pose des questions auxquelles il faut répondre par oui ou non.
Question 1 : Avez-vous suffisamment d'espace pour installer une plateforme élévatrice?
- Si la réponse est « oui » :
- vous serez mieux servi par une plateforme élévatrice verticale.
- Si la réponse est « non », passez à la question 2.
Question 2 : Avez-vous accès à un seul escalier de secours en cas d'urgence?
- Si la réponse est « oui », passez à la question 3.
- Si la réponse est « non » :
- vous serez mieux servi par une plateforme élévatrice verticale.
Question 3 : Est-ce que plus d'une personne à la fois doit y accéder?
- Si la réponse est « oui » :
- vous serez mieux servi par une plateforme élévatrice verticale.
- Si la réponse est « non » :
- une plateforme élévatrice inclinée pourrait répondre à vos besoins.
Résultat :
- les plateformes élévatrices verticales sont plus inclusives que les plateformes élévatrices inclinées.
Figure 10 : Plateforme élévatrice inclinée

- Source : NBC 2015 / CSA/ASC B651 : 23 / CSA B355 : 19.
Figure 10 – Version textuelle
- Il y a une volée d'escalier qui mène à un palier avant de pivoter sur 45 degrés et de continuer vers la prochaine volée d'escalier.
- La plateforme élévatrice mesure 2 pi 4 po sur 3 pi 7 po (724 mm sur 1 118 mm), est située au milieu de la première volée d'escalier et est fixée à l'aide de rails inclinés.
- Le dégagement minimal pour permettre à la plateforme de monter les marches est de 5 pi (1 500 mm).
- Au bas des marches se situe un bouton de poste d'arrêt d'une hauteur maximale de diamètre extérieur de 3 pi 11 po (1 200 mm) du sol.
- Au haut du palier se trouve une alarme audiovisuelle pour avertir les gens que la plateforme est en cours d'utilisation.
- Au haut de la deuxième volée d'escalier se trouve un autre bouton, ainsi qu'un rectangle qui abrite la machinerie du système d'entraînement.
Une plateforme élévatrice est fixée par des rails inclinés aux volées d'escaliers. Il y a au bas de l'escalier un bouton d'appel ascenseur pour demander de l'aide au besoin. Au haut du palier se trouve une alarme audiovisuelle pour avertir les gens que la plateforme est en cours d'utilisation. Au haut de la deuxième volée d'escalier se trouve un autre bouton d'appel, ainsi que la machinerie du système d'entraînement.
Les plateformes élévatrices intérieures et extérieures comprennent :
- une unité de plateforme élévatrice;
- des commandes;
- des rails inclinés;
- une alimentation électrique.
Éléments d'accessibilité facultatifs :
- intégration au système d'alarme d'incendie;
- éclairage;
- siège rabattable avec ceinture de sécurité;
- panneaux indicateurs en braille.
Figure 11 : Plateforme élévatrice verticale (avec enceinte)

- Source : NBC 2015 / CSA/ASC B651 : 23 / CSA B355 : 19
Figure 11 – Version textuelle
- Il y a une plateforme élévatrice verticale s'étendant sur 2 étages munie d'une porte pour y accéder, qui est située à l'arrêt inférieur.
- La fosse minimale sous la plateforme élévatrice est de 3 po (76 mm).
- La hauteur de levée maximale pour un arrêt est de 23 pi (7 000 mm).
- Le dégagement minimal de l'arrêt supérieur est de 7 pi 4 po (2 235 mm).
- L'arrêt supérieur comporte une porte d'enceinte, ainsi que la machinerie du mât de levage.
Les plateformes élévatrices verticales comprennent :
- une unité de plateforme élévatrice;
- des commandes;
- une alimentation électrique;
- une fosse;
- un mât de levage.
Pour les plateformes de plus de 8 pi (2,5 m) ou exposées à la pluie et à la neige, une enceinte sera automatiquement calculée dans le coût à taux fixes.
Éléments d'accessibilité facultatifs :
- intégration au système d'alarme d'incendie;
- éclairage;
- panneaux indicateurs en braille.
Ascenseurs
Un panneau de commandes d'ascenseur devrait être situé à la hauteur des yeux afin d'offrir une meilleure accessibilité aux personnes qui utilisent des appareils fonctionnels comme un fauteuil roulant.
Figure 12 : Choisir un ascenseur en tenant compte de ses besoins en matière d'accessibilité

Figure 12 – Version textuelle
Le diagramme pose des questions auxquelles il faut répondre par oui ou non.
Question 1 : Un ascenseur est-il nécessaire en vertu du code du bâtiment?
- Si la réponse est « oui », passez à la question 4.
- Si la réponse est « non », passez à la question 2.
Question 2 : Avez-vous besoin d'accéder à un endroit de plus de 2 étages?
- Si la réponse est « oui », passez à la question 4.
- Si la réponse est « non », passez à la question 3.
Question 3 : L'ascenseur sera-t-il utilisé par tous (il n'est pas réservé qu'aux personnes à mobilité réduite)?
- Si la réponse est « oui », passez à la question 4.
- Si la réponse est « non » :
- un ascenseur à usage limité/utilisation limitée (ULUL) pourrait répondre à vos besoins.
Question 4 : Avez-vous besoin d'accéder à un endroit de plus de quatre étages?
- Si la réponse est « oui » :
- vous serez mieux servi par un ascenseur à traction.
- Si la réponse est « non » :
- un ascenseur hydraulique pourrait répondre à vos besoins.
Résultat :
- un ascenseur à traction est plus inclusif qu'un ascenseur à usage limité.
Figure 13 : Ascenseur à usage limité/utilisation limitée (ULUL)

- Source : NBC 2015 / CSA/ASC B651 : 23 / CSA B44 : 16.
Figure 13 – Version textuelle
- Les portes renferment un ascenseur à 2 arrêts. La cabine de l'ascenseur se trouve à l'arrêt inférieur.
- La fosse minimale sous l'ascenseur est de 1 pi 2 po (355 mm).
- La hauteur de levée maximale par étage est de 25 pi (7 600 mm).
- L'arrêt supérieur comporte des portes d'ascenseur.
Les ascenseurs de type ULUL offrent un accès vertical direct entre 2 ou plusieurs étages. La cabine de l'ascenseur peut contenir un nombre limité d'occupants pour un usage courant. Ces ascenseurs exigent des fosses et des salles de machines plus petites, et conviennent aux espaces restreints.
Les ascenseurs à usage limité/utilisation limitée comprennent :
- des portes;
- des commandes;
- un cylindre hydraulique, un moteur et un réservoir;
- des rails-guides;
- une alimentation électrique;
- une fosse;
- une salle des machines;
- un puits (l'enceinte d'un ascenseur ou d'un puits);
- une cabine d'ascenseur dans laquelle les usagers montent et descendent.
Éléments d'accessibilité facultatifs :
- panneaux indicateurs en braille.
Figure 14 : Ascenseur hydraulique

- Source : NBC 2015 / CSA/ASC B651 : 23 / CSA B44 : 16.
Figure 14 – Version textuelle
- Les portes renferment un ascenseur à 2 arrêts comportant un mécanisme de levage au bas. La cabine de l'ascenseur se trouve à l'arrêt inférieur.
- La fosse minimale sous l'ascenseur est de 5 pi (1 525 mm).
- L'arrêt supérieur comporte des portes d'ascenseur et un palonnier, complètement en haut du puits d'ascenseur.
Les ascenseurs hydrauliques offrent un accès vertical direct entre 2 ou plusieurs étages. La cabine d'ascenseur peut être dimensionnée afin d'accueillir une multitude d'occupants pour un usage courant. Ces ascenseurs conviennent pour des applications de basse à moyenne élévation (jusqu'à environ 5 arrêts).
Les ascenseurs hydrauliques comprennent :
- des portes;
- des commandes;
- un cylindre hydraulique, un moteur et un réservoir;
- des rails-guides;
- un puits (l'enceinte d'un ascenseur ou d'un puits);
- une alimentation électrique;
- une fosse, une échelle fixe, un drain et un puisard;
- une salle des machines;
- une cage d'ascenseur avec main courante et téléphone d'urgence.
Éléments d'accessibilité facultatifs :
- panneaux indicateurs en braille;
- boucle magnétique;
- siège rabattable.
Figure 15 : Ascenseur à traction

- Source : NBC 2015 / CSA/ASC B651 : 23 / CSA B44 : 16.
Figure 15 – Version textuelle
- Les portes renferment un ascenseur s'étendant sur 2 étages qui comporte de l'espace supplémentaire pour abriter la salle des machines et le palonnier. La cabine de l'ascenseur se trouve à l'arrêt inférieur.
- La fosse minimale sous l'ascenseur est de 5 pi 8 po (1 720 mm) et comporte 2 pistons pour soulever et abaisser la cabine.
- Au second étage du puits d'ascenseur se trouve un contrepoids.
- L'arrêt supérieur comporte des portes d'ascenseur.
Les ascenseurs à traction offrent un accès vertical direct entre 2 niveaux ou davantage. La cabine d'ascenseur peut être dimensionnée pour accueillir une multitude d'occupants pour un usage courant. Ces ascenseurs conviennent pour des applications de moyenne à haute élévation (environ 5 arrêts ou plus).
Les ascenseurs à traction comprennent :
- une cabine d'ascenseur avec main courante et téléphone d'urgence;
- des portes;
- des commandes;
- un moteur et un contrepoids;
- des rails-guides;
- des câbles porteurs;
- un câble mobile;
- un puits (l'enceinte d'un ascenseur ou d'un puits);
- un palonnier;
- une alimentation électrique;
- une fosse, une échelle fixe, un drain et un puisard;
- une salle des machines.
Éléments d'accessibilité facultatifs :
- panneaux indicateurs en braille;
- boucle magnétique;
- siège rabattable.
Lève-personne pour piscine
Figure 16 : Choisir un lève-personne pour piscine en tenant compte de ses besoins en matière d'accessibilité

Figure 16 – Version textuelle
Le diagramme pose des questions auxquelles il faut répondre par oui ou non.
Question 1 : Votre piscine ou votre spa est-il creusé?
- Si la réponse est « oui », passez à la question 2.
- Si la réponse est « non » :
- un lève-personne pourrait répondre à vos besoins.
Question 2 : Votre lève-personne doit-il être adapté aux dispositifs d'assistances (par exemple, un fauteuil roulant)?
- Si la réponse est « oui », passez à la question 4.
- Si la réponse est « non » :
- un lève-personne pourrait répondre à vos besoins.
Question 3 : Y a-t-il suffisamment d'espace dans votre piscine pour y installer un lève-personne?
- Si la réponse est « oui » :
- vous serez mieux servi par une plateforme élévatrice permanente.
- Si la réponse est « non » :
- une plateforme élévatrice mobile pourrait répondre à vos besoins.
Résultat :
- les plateformes élévatrices permanentes sont plus inclusives qu'un lève-personne.
Figure 17 : Lève-personne pour piscine hors terre

- Source : NBC 2015 / CSA/ASC B651 : 23.
Figure 17 – Version textuelle
- Le siège du lève-personne pivote de la terrasse à la piscine.
- La chaise doit être à au moins 4 pi (1 200 mm) d'un mur pour donner le dégagement adéquat pour qu'une personne puisse monter sur le lève-personne.
- La chaise s'abaisse près du mur du bassin pour permettre à la personne de descendre.
Un lève-personne de piscine est un siège rigide conçu pour transporter une personne en position assise de la terrasse à la piscine hors terre ou creusée. La chaise pivote et s'abaisse près du mur du bassin pour permettre à la personne de sortir.
Les lève-personnes pour piscines hors terre et creusées comprennent :
- un lève-personne;
- un ancrage à la terrasse de la piscine.
Figure 18 : Plateforme élévatrice permanente pour piscine creusée

- Source : NBC 2015 / CSA/ASC B651 : 23.
Figure 18 – Version textuelle
- La plateforme élévatrice est située à la même hauteur que la terrasse de la piscine.
- Il y a un panneau de commande de la plateforme à l'entrée de la plateforme, qui comporte des garde-corps.
- Un mécanisme de levage abaisse la plateforme le long du mur du bassin.
- La plateforme élévatrice est ancrée au plancher de la piscine.
Les plateformes élévatrices pour piscine offrent un accès direct entre la terrasse et la piscine creusée. La plateforme élévatrice est conçue pour transporter une personne utilisant un appareil d'aide à la mobilité de sorte qu'elle puisse entrer dans l'eau facilement et de manière autonome. Les commandes de la plateforme élévatrice peuvent être actionnées par l'occupant ou son accompagnateur. Le mécanisme de levage abaisse la plateforme dans l'eau le long du rebord de la paroi du bassin.
Les plateformes élévatrices permanentes et portables pour piscine comprennent :
- une plateforme élévatrice;
- un ancrage pour terrasse de piscine;
- un fauteuil roulant pour piscine.
Des environnements multisensoriels
Dans la mesure du possible, une pièce multisensorielle est l'environnement privilégié pour créer un espace contrôlé qui s'adapte aux besoins d'une diversité de participants.
Figure 19 : Choisir un espace multisensoriel en tenant compte de ses besoins en matière d'accessibilité

Figure 19 – Version textuelle
Le diagramme pose des questions auxquelles il faut répondre par oui ou non.
Question 1 : Y a-t-il un espace de 160 pi2 disponible qui peut être rénové? Ou, peut-on construire une annexe?
- Si la réponse est « oui », passez à la question 2.
- Si la réponse est « non » :
- une station mobile multisensorielle pourrait répondre à vos besoins.
Question 2 : Les utilisateurs ont-ils la capacité ou la mobilité pour se rendre dans une pièce désignée?
- Si la réponse est « oui », passez à la question 3.
- Si la réponse est « non » :
- une station mobile multisensorielle pourrait répondre à vos besoins.
Question 3 : Aimeriez-vous que l'espace multisensoriel puisse recevoir plus d'un utilisateur à la fois?
- Si la réponse est « oui », passez à la question 4.
- Si la réponse est « non » :
- une station mobile multisensorielle pourrait répondre à vos besoins.
Question 4 : Y a-t-il du personnel pour s'occuper d'un espace multisensoriel?
- Si la réponse est « oui » :
- vous serez mieux servi par une pièce multisensorielle.
- Si la réponse est « non » :
- une station mobile multisensorielle pourrait répondre à vos besoins.
Résultat :
- si la réponse aux questions est « oui », une pièce multisensorielle pourrait répondre à vos besoins d'accessibilité. Il s'agit de l'option la plus inclusive.
Figure 20 : Pièce multisensorielle

Figure 20 – Version textuelle
- Une pièce multisensorielle inclut les finitions pour une pièce d'environ 160 pi2 (15 m2) ou 10 pi sur 16 pi qui comprend un espace dégagé pour entrer dans la pièce et en sortir, avec une porte sur la gauche qui s'ouvre vers l'intérieur et un placard pour ranger l'équipement avec une porte en face.
- Il y a aussi un espace dégagé qui donne accès à l'endroit pour se laver les mains.
- Il y a assez de place sous le lavabo pour que des personnes avec des appareils fonctionnels puissent y mettre les genoux et une protection contre l'eau chaude.
- Le lavabo comporte une protection murale, un distributeur de savon, un distributeur de serviettes et une poubelle.
- La pièce inclut :
- un éclairage optimisé, un thermostat et un ventilateur avec des commandes à l'intérieur de la pièce;
- au moins quatre prises électriques doubles disposées avec une considération pour l'équipement sensoriel;
- un bouton d'appel d'urgence;
- panneau d'affichage dans la pièce;
- murs et porte insonorisés.
Les pièces multisensorielles créent un espace contrôlé et sécuritaire conçu pour stimuler ou calmer les sens. Ils peuvent être des espaces reposants pour aider à réduire l'agitation et l'anxiété. Ils peuvent aussi inciter l'utilisateur à participer à des activités, stimuler des réactions et encourager la communication. D'une façon générale, la pièce peut s'adapter à un large éventail de besoins des participants.
Il est important de consulter des professionnels tels que architectes et ingénieurs mécaniciens et électriques pour optimiser l'insonorisation et les systèmes qui se trouvent à l'intérieur de l'espace. Les honoraires professionnels sont compris dans le coût à taux fixes.
Une pièce multisensorielle inclut les finitions pour une salle d'environ 160 pi2 (15 m2) ou de 10 pi sur 16 pi qui inclut un espace dégagé pour entrer dans la pièce et en sortir. Il y a aussi un espace dégagé qui donne accès à l'endroit pour se laver les mains. Il y a assez de place sous le lavabo pour que des personnes avec des appareils fonctionnels puissent y mettre les genoux et une protection contre l'eau chaude.
Les pièces multisensorielles comprennent :
- un plancher acoustique antidérapant :
- caoutchouc ou vinyle antidérapant avec couche d'isolation acoustique en dessous;
- couleurs contrastantes par rapport aux murs, aux portes, etc.
- des murs insonorisés et de la peinture de couleurs contrastantes :
- ceci ne comprend pas la construction de nouveaux murs, mais seulement l'insonorisation et de la peinture de couleur contrastantes pour les murs nouveaux ou existants;
- l'insonorisation pour un indice minimum d'ITS 48.Note de bas de page 1
- une porte insonorisée :
- un cadre en acier isolé;
- la quincaillerie de porte;
- un mécanisme automatique avec des commandes;
- un branchement électrique;
- une transition sans obstacle;
- de la peinture contrastante.
- un système de CVCA optimisé (au-delà des exigences minimales du code) :
- une meilleure qualité de l'air;
- une absorption acoustique pour un indice minimum d'ITS 45 et CAP 40;Note de bas de page 1
- des commandes à hauteur accessible dans la pièce.
- un éclairage optimisé (au-delà des exigences minimales du code) :
- un éclairage anti-éblouissement avec rhéostat;
- des commandes à hauteur accessible dans la pièce;
- des installations électriques optimisées (au-delà des exigences minimales du code) :
- des prises et circuits de plus grande capacité;
- un minimum de 4 prises doubles dans la pièce.
- un lavabo monté au mur :
- et installé avec des modifications à la plomberie existante;
- une tuyauterie ou enveloppe isolée;
- une protection murale;
- un distributeur de savon;
- un distributeur de serviettes;
- une poubelle.
- un placard pour ranger l'équipement sensoriel :
- une porte en métal creuse avec un cadre en acier;
- la quincaillerie de porte.
- signalisation dans la pièce avec texte, pictogramme et braille :
- signalisation unidirectionnelle placée ailleurs pour guider les utilisateurs.
Outils et équipement sensoriels
Les ensembles suivants montrent ce qu'il est possible d'acheter avec le montant de financement inclus dans chaque ensemble sélectionné. Il s'agit uniquement d'exemples. Vous pouvez acheter des articles sensoriels similaires d'une valeur équivalente qui répondent mieux aux besoins des utilisateurs. Les ensembles choisis dépendront des besoins des utilisateurs de la pièce multisensorielle.
Il est important de consulter des spécialistes, entre autres un ergothérapeute, un physiothérapeute ou un orthophoniste, au moment d'acheter de l'équipement sensoriel pour adapter l'espace et les programmes aux utilisateurs visés.
Ensemble auditif : Articles qui produisent de la musique, des tonalités ou autres bruits.
- 5 jouets musicaux, 4 jeux, 1 machine à sons.
Ensemble visuel : Articles qui produisent de la lumière ou un autre apport visuel.
- 1 table lumineuse, 4 jeux, 2 lampes, 4 panneaux lumineux, 1 ensemble de projecteurs, 1 lumière à fibres optiques.
Ensemble à vibrations ou vibroacoustique : Articles conçus pour produire des vibrations. La vibroacoustique combine les vibrations et les sons.
- 1 chaise de vibroacoustique, 1 coussin vibrant, 1 oreiller vibrant, 1 matelas vibrant, 1 jouet buccal vibrant, 1 jouet à main vibrant.
Ensemble pour sens musculaire (proprioception) : Articles qui activent le travail articulaire et musculaire.
- 1 minitrampoline, 1 chaise rebondissante, 3 chaussettes corporelles (petit, moyen, grand), 1 machine à comprimer, 1 couverture lestée avec poids ajustables, 1 veste lestée avec taille ajustable, 1 jouet lesté à avoir sur les genoux ou par-dessus les épaules.
Ensemble pour les mouvements (vestibulaire) : Articles conçus pour entraîner des mouvements.
- 1 balançoire, 1 toupie, 1 poutre, 1 scooter, 1 coussin d'équilibre, 1 balle thérapeutique, 1 siège à bascule, 1 planche d'équilibre.
Ensemble d'atténuation sensorielle : Articles qui permettent à l'utilisateur de réduire le bruit, les apports visuels et autres stimuli.
- 4 ensembles d'écouteurs atténuateurs de bruit, 4 masques oculaires ajustables.
Éléments d'accessibilité facultatifs :
- revêtement acoustique de plafond :
- option 1) dalles de plafond acoustique suspendues en forme d'ossature, couvrant 100 % de la surface du plafond;
- option 2) baffles pour plafond acoustique suspendu, couvrant environ 50 % de la surface du plafond;
- avec l'une ou l'autre de ces options, il faut s'assurer que le traitement acoustique du plafond est au moins conforme aux normes CRB 0,55 et CAP 35.Note de bas de page 1
- revêtement mural hygiénique;
- sièges et surfaces de travail spécialisés;
- sélection de chaises, matelas et cales;
- tables ou plateformes de hauteur ajustable;
- bouton d'appel d'urgence;
- porte d'issue d'urgence insonorisée supplémentaire.
Figure 21 : Station mobile multisensorielle

Figure 21 – Version textuelle
- La station mobile repose sur quatre roues robustes qui se bloquent pour faciliter le transport.
- Elle est surmontée d'une barre pour accrocher au besoin des éléments sensoriels.
- Il y a une surface de travail de hauteur ajustable avec des poignées de poussée du côté gauche et une poubelle.
- La tablette en dessous a des compartiments de rangement sécurisés avec une surface de travail rabattable et de hauteur ajustable pour les personnes assises.
- Il y a un branchement électrique en bas du chariot.
Une station mobile offre un environnement multisensoriel où l'espace ou la mobilité des utilisateurs peut être une considération. Le chariot devrait avoir une hauteur ajustable pour amener les utilisateurs à participer pendant qu'ils sont assis ou debout.
Un chariot multisensoriel comprend :
- une surface de travail de hauteur ajustable;
- des poignées de poussée de hauteur ajustable;
- des roues robustes qui se bloquent;
- des compartiments de rangement sécurisés;
- une barre aérienne pour accrocher des éléments sensoriels au besoin;
- un branchement électrique avec 4 prises;
- une poubelle.
Outils et équipement sensoriels
Les ensembles suivants montrent ce qu'il est possible d'acheter avec le financement inclus dans chaque ensemble sélectionné Il s'agit uniquement d'exemples. Vous pouvez acheter des articles sensoriels similaires d'une valeur équivalente qui répondent le mieux aux besoins des utilisateurs. Les ensembles choisis dépendront des besoins des utilisateurs de la station multisensorielle.
Il est important de consulter des spécialistes, entre autres un ergothérapeute, un physiothérapeute ou un orthophoniste, au moment d'acheter de l'équipement sensoriel pour adapter l'espace et les programmes aux utilisateurs visés.
Ensemble auditif : Articles qui produisent de la musique, des tonalités ou autres bruits.
- 5 jouets musicaux, 3 jeux, 1 machine à sons.
Ensemble visuel : Articles qui produisent de la lumière ou un autre apport visuel.
- 4 jeux, 1 lampe, 1 panneau ou un boîtier de table lumineux, 1 ensemble de projecteurs, 1 lumière à fibres optiques.
Ensemble à vibrations ou vibroacoustique : Éléments qui produisent des vibrations. La vibroacoustique combine les vibrations et les sons.
- 1 coussin vibrant, 1 oreiller vibrant, 1 matelas vibrant, 1 jouet buccal vibrant, 1 jouet à main vibrant.
Ensemble pour sens musculaire (proprioception) : Articles qui activent le travail articulaire et musculaire.
- 3 chaussettes corporelles (petit, moyen, grand), 1 couverture lestée avec poids ajustables, 1 veste lestée avec taille ajustable, 1 jouet lesté à avoir sur les genoux ou par-dessus les épaules.
Ensemble pour les mouvements (vestibulaire) : Articles conçus pour entraîner des mouvements.
- 1 coussin d'équilibre, 1 siège à bascule, 1 planche d'équilibre.
Ensemble d'atténuation sensorielle : Articles qui permettent à l'utilisateur de réduire le bruit, les apports visuels et autres stimuli.
- 2 ensembles d'écouteurs atténuateurs de bruit, 2 masques oculaires ajustables.
Aires de jeux accessibles
Les aires de jeux accessibles favorisent l'engagement et la participation des personnes de tous âges et de toutes habiletés. Elles devraient offrir une variété d'éléments de jeu. Ces éléments devraient fournir des occasions de mettre au défi les habiletés et les types de jeu des utilisateurs, par exemple des expériences sociales, physiques, et mentales. Un certain nombre d'éléments de jeu au sol devraient être inclus pour les personnes qui ne peuvent pas accéder à des endroits en hauteur. Il est important de consulter un paysagiste ou un concepteur de terrains de jeux au moment de concevoir, de construire, ou de rénover une aire de jeux accessible.
Figure 22 : Choisir une aire de jeux accessible en tenant compte de ses besoins en matière d'accessibilité

Figure 22 – Version textuelle
Le diagramme pose des questions auxquelles il faut répondre par oui ou non.
Question 1 : Possédez-vous actuellement une aire de jeux?
- Si la réponse est « oui » :
- passez à la question 2.
- Si la réponse est « non » :
- vous serez mieux servi par une nouvelle aire de jeux accessible.
Question 2 : L'aire de jeux a-t-elle des éléments existants qui peuvent être utilisés?
- Si la réponse est « oui » :
- passez à la question 3.
- Si la réponse est « non » :
- vous serez mieux servi par une nouvelle aire de jeux accessible.
Question 3 : Les éléments peuvent-ils être modifiés pour les mises à niveau accessibles?
- Si la réponse est « oui » :
- la rénovation de l'aire de jeux pourrait répondre à vos besoins.
- Si la réponse est « non » :
- vous serez mieux servi par une nouvelle aire de jeux accessible.
Résultat :
- Si la réponse aux questions est « non », une nouvelle aire de jeux accessible pourrait répondre à vos besoins d'accessibilité.
Veuillez noter que si vous rénovez une aire de jeux et que vous enlevez tous les équipements existants en vue d'en construire une nouvelle, les coûts liés au retrait des équipements existants seront automatiquement calculés dans les coûts à taux fixe.
Figure 23 : Aire de jeux accessible – petite

Figure 23 – Version textuelle
- Le schéma de l'aire de jeux est présenté en plongée et de profil.
- Sur la gauche, il y a un trottoir existant avec un nouveau passage qui mène au terrain de jeux.
- Le passage aboutit à une surface de sécurité accessible permettant aux personnes ayant des appareils fonctionnels d'accéder facilement et d'une manière sécuritaire au terrain de jeux.
- Il y a une zone tampon antichute qui délimite l'aire de jeux.
- La structure de jeux est au centre de l'image.
- À gauche de la structure de jeux, une passerelle aérienne accessible relie le niveau du sol à la partie surélevée.
- Sur la structure de jeux, il y a 2 éléments de jeux, un toboggan et un panneau de jeux.
- À droite de la structure de jeux, il y a une plateforme de transformation.
- Un panneau sensoriel au niveau du sol se trouve à l'extrémité droite de l'aire de jeux.
Un sentier mène à un passage ou un trottoir piétonnier existant. Il doit avoir au moins 150 mm de large et une pente ne dépassant pas 5 %. La surface de sécurité accessible doit être d'une certaine profondeur compte tenu des hauteurs de chute afin de répondre aux exigences de l'ACN et pour les besoins de drainage. La surface a une bordure ou « zone tampon antichute » qui délimite l'aire de jeux. Des passerelles accessibles relient les parties surélevées aux éléments qui se trouvent au niveau du sol. Une plateforme de transfert permet aux personnes de passer de leurs appareils d'aide à la mobilité aux éléments de jeux surélevés. Une carte d'orientation tactile permet aux utilisateurs ayant une déficience visuelle de circuler dans l'aire de jeux.
Les aires de jeux accessibles comprennent :
- des surfaces de sécurité accessibles :
- de la fibre de bois usinée;
- du caoutchouc coulé (l'option la plus accessible pour les appareils fonctionnels comme les fauteuils roulants);
- des éléments de jeux en hauteur et/ou au niveau du sol tels que :
- en hauteur :
- échelles;
- toboggans;
- panneaux de jeux sensoriels.
- au sol :
- balançoires;
- jeux sur ressort;
- trampolines;
- panneaux de jeux sensoriels.
- en hauteur :
- passerelle surélevée et/ou plateforme de transfert permettant d'accéder du niveau du sol aux éléments de jeux en hauteur;
- sentier menant à un passage piétonnier.
Éléments d'accessibilité facultatifs :
- carte d'orientation tactile;
- panneaux de jeux sensoriels;
- sièges accessibles.
Figure 24 : Aire de jeux accessible – moyenne

Figure 24 – Version textuelle
- Le schéma de l'aire de jeux est présenté en plongée et de profil.
- Sur la gauche, il y a un trottoir existant avec un nouveau passage qui mène au terrain de jeux.
- Le passage aboutit à une surface de sécurité accessible permettant aux personnes ayant des appareils fonctionnels d'accéder facilement et d'une manière sécuritaire au terrain de jeux.
- Il y a une zone tampon antichute qui délimite l'aire de jeux.
- La structure de jeux est au centre de l'image.
- À gauche de la structure de jeux, il y a une balançoire accessible.
- La structure de jeux se trouve à droite de la balançoire. Une passerelle accessible surélevée relie le niveau du sol à l'aire en hauteur.
- Une fois sur la structure de jeux, il y a 2 éléments de jeux, un toboggan et un panneau de jeux.
- À droite de la structure de jeux, il y a une plateforme de transformation.
- Un manège au niveau du sol se trouve à l'extrémité droite de l'aire de jeux.
Figure 25 : Aire de jeux accessible - grande

Figure 25 – Version textuelle
- Le schéma de l'aire de jeux est présenté en plongée et de profil.
- Sur la gauche, il y a un trottoir existant avec un nouveau passage qui mène au terrain de jeux.
- Le passage aboutit à une surface de sécurité accessible permettant aux personnes ayant des appareils fonctionnels d'accéder facilement et d'une manière sécuritaire au terrain de jeux.
- Il y a une zone tampon antichute qui délimite l'aire de jeux.
- En haut à gauche de la structure de jeux, il y a un élément au niveau du sol.
- La structure de jeux est au centre de l'image.
- Il y a des passerelles accessibles qui relient le niveau du sol à la structure de jeux, ainsi que 2 zones en hauteur.
- Une fois sur la structure de jeux, il y a 3 éléments de jeux en hauteur tels que toboggans et panneaux de jeux.
- À droite de la structure de jeux, il y a une plateforme de transformation.
- Il y a 2 éléments supplémentaires au niveau du sol, par exemple un manège ou un trampoline, en bas à droite et en haut à gauche du terrain de jeux.
Stationnement accessible
Pour déterminer le nombre recommandé d'espaces de stationnement accessibles par rapport au nombre actuel de places de stationnement, voir le tableau ci-dessous. Veuillez noter que les coûts à taux fixe ne permettront de calculer que jusqu'à 6 espaces de stationnement accessibles. La détermination des coûts pour plus de 6 espaces de stationnement accessibles sont la responsabilité du demandeur.
Tableau 1 : Ratio de places de stationnement aux espaces de stationnement accessibles
Nombre de places de stationnement | Nombre d'espaces de stationnement accessibles |
---|---|
2 à 5 | 1 à 3 |
51 à 100 | 2 à 4 |
101 à 200 | 4 à 8 |
201 à 300 | 5 à 10 |
301 à 500 | 6 à 12 |
- Source : Tableau 10, CSA/ASC B651 : 23 Conception accessible pour l'environnement bâti. © 2023 Association canadienne de normalisation.
Les espaces de stationnement accessibles doivent être situés le plus près possible de l'entrée accessible du bâtiment ou de la destination, mais pas plus de 164 pi (50 m) de distance (la pratique exemplaire est de ne pas les placer à plus de 98 pi 5 po (30 m) de distance).
Figure 26 : Stationnement accessible – unique – inférieur au niveau du sol
- Source : Figure 67, CSA/ASC B651 : 23 Conception accessible pour l’environnement bâti. © 2023 Association canadienne de normalisation.
Figure 26 – Version textuelle
- Présenté en plongée est le schéma d'un seul espace de stationnement accessible.
- Il y a un espace de stationnement accessible, une allée d'accès à côté de l'espace et un chemin reliant l'allée d'accès à l'entrée accessible du bâtiment.
- Un symbole d'un utilisateur de fauteuil roulant est peint au sol pour indiquer l'espace de stationnement accessible, et des bandes diagonales sont peintes sur la chaussée pour indiquer l'allée d'accès.
- Des panneaux indiquent également l'espace de stationnement accessible et l'allée d'accès.
- Étant donné que l'espace de stationnement accessible est inférieur au niveau du sol, l'allée d'accès est reliée au chemin accessible par une bordure de trottoir et des bosses tactiles indiquant un changement de surface.
- Il y a un éclairage sur poteau pour éclairer l'espace et l'allée d'accès, ainsi qu'un éclairage le long du chemin.
- Au centre du chemin accessible, il y a des bosses tactiles et des bandes pour diriger les personnes malvoyantes vers l'entrée accessible du bâtiment.
Figure 27 : Stationnement accessible – multiple – inférieur au niveau du sol
- Source : Figure 67, CSA/ASC B651 : 23 Conception accessible pour l’environnement bâti. © 2023 Association canadienne de normalisation.
Figure 27 – Version textuelle
- Présenté en plongée est le schéma de plusieurs espaces de stationnement accessibles.
- Il y a 2 espaces de stationnement accessibles, une allée d'accès commune entre les espaces et un chemin reliant l'allée d'accès à l'entrée accessible du bâtiment.
- Les symboles d'un utilisateur de fauteuil roulant sont peints au sol pour indiquer les espaces de stationnement accessibles, et des bandes diagonales sont peintes au sol pour indiquer l'allée d'accès commune.
- Des panneaux indiquent également les espaces de stationnement accessibles et l'allée d'accès commune.
- Étant donné que les espaces de stationnement accessibles sont inférieurs au niveau du sol, l'allée d'accès est reliée au chemin accessible par une bordure abaissée et des bosses tactiles indiquant un changement de surface.
- Il y a un éclairage sur poteau pour éclairer les places et l'allée d'accès, ainsi qu'un éclairage le long du chemin.
- Au centre du chemin accessible, il y a des bosses tactiles et des bandes pour diriger les personnes malvoyantes vers l'entrée accessible du bâtiment.
Les espaces de stationnement accessibles comprennent :
- des marques de surface dans une peinture à contraste élevé pour un espace accessible et une allée d'accès;
- 2 poteaux et 1 butoir de roues par place OU 1 bordure abaissée par allée d'accès;
- dépend si l'espace de stationnement est au niveau du sol (poteaux/butoir de roue) ou inférieur au niveau du sol (bordure abaissée).
- 1 panneau indicateur de stationnement par espace de stationnement;
- 1 panneau indicateur d'allée d'accès par allée d'accès;
- 1 panneau d'orientation par allée d'accès pour diriger les gens vers l'entrée accessible du bâtiment ou de la destination;
- orientation architecturale menant les gens à l'entrée accessible du bâtiment ou de la destination;
- par exemple, flèches, bosses tactiles ou bandes peintes en couleur au sol.
Éléments d'accessibilité facultatifs :
- surface en béton ou en asphalte;
- éclairage;
- repères d'orientation/indicateurs de direction à l'entrée accessible du bâtiment;
- par exemple, couleur ou matériau à contraste élevé sur la façade du bâtiment.
- un chemin accessible reliant l'allée d'accès à l'entrée accessible du bâtiment ou de la destination, avec des options pour :
- éclairage du chemin;
- détection du bord du chemin;
- bordures abaissées supplémentaires.
Figure 28 : Stationnement accessible – inférieur au niveau du sol et au niveau du sol
Figure 28 – Version textuelle
- Une vue de profil présente la différence entre un stationnement accessible inférieur au niveau du sol et un stationnement accessible au niveau du sol.
- Inférieur au niveau du sol, l'espace de stationnement accessible est relié au chemin accessible par une bordure abaissée dotée d'une surface d'indicateurs tactiles d'avertissement.
- Au niveau du sol, l'espace de stationnement accessible est séparé du chemin accessible par un butoir de roues et 2 poteaux/bornes.
Si votre espace de stationnement accessible est inférieur au niveau du sol, une bordure abaissée supplémentaire avec des bosses tactiles sera automatiquement incluse dans les coûts à taux fixe. Si votre espace de stationnement accessible se trouve au niveau du sol, un butoir de roue et 2 poteaux/bornes seront automatiquement inclus dans les coûts à taux fixe.
Aires de débarquement accessibles
Les aires de débarquement accessibles permettent de débarquer et d'embarquer en toute sécurité les personnes qui ont de la difficulté à marcher sur de longues distances ou qui ont une endurance limitée, les utilisateurs d'aides à la mobilité et les personnes qui voyagent avec des aidants naturels (p. ex., les personnes ayant une perte de vision).
Les aires de débarquement accessibles doivent être situées à moins de 98 pi 5 po (30 m) de l'entrée accessible du bâtiment ou de la destination, et à l'écart de la voie de circulation.
Figure 29 : Aires de débarquement accessibles
Figure 29 – Version textuelle
- Présenté en plongée est le schéma d'une aire de débarquement accessible est.
- Une voiture est arrêtée à côté de l'allée d'accès, qui est indiquée par des bandes diagonales et « Stationnement interdit » peints au sol.
- Une bordure abaissée relie l'allée d'accès au chemin accessible.
- Au centre du chemin accessible, il y a des bosses tactiles et des bandes pour diriger les personnes malvoyantes vers l'entrée accessible du bâtiment.
- À gauche, il y a une aire de repos/d'attente avec des sièges accessibles et un abri de protection contre les éléments.
- Il y a un éclairage monté sur poteau pour éclairer l'allée d'accès et de l'éclairage le long du chemin.
- Le schéma d'une plateforme surélevée est également illustré, avec des bordures abaissées aux 2 extrémités et des bosses tactiles et des bandes de chaque côté.
Les aires de débarquement accessibles comprennent :
- surface en béton ou en asphalte (y compris l'enlèvement de la surface existante);
- marques de surface dans de la peinture à contraste élevé;
- 2 poteaux et 1 butoir de roues OU 1 bordure abaissée pour relier l'aire de débarquement à un chemin;
- dépend si l'aire de débarquement se trouve au niveau du sol (poteaux/butoir de roues) ou inférieur au niveau du sol (bordure abaissée).
- 1 panneau indicateur de l'aire de débarquement accessible;
- 1 panneau d'orientation pour diriger les gens vers l'entrée accessible du bâtiment ou de la destination;
- orientation architecturale menant les gens à l'entrée accessible du bâtiment ou de la destination;
- par exemple, flèches, bosses tactiles ou bandes peintes en couleur au sol.
- 1 aire de repos/d'attente avec sièges accessibles.
Éléments d'accessibilité facultatifs :
- éclairage;
- repères d'orientation/indicateurs de direction à l'entrée accessible du bâtiment;
- par exemple, couleur ou matériau à contraste élevé sur la façade du bâtiment.
- un chemin accessible reliant l'aire de débarquement accessible à l'entrée accessible du bâtiment ou de la destination, avec les options suivantes :
- éclairage du chemin;
- détection du bord du chemin;
- bordures abaissées supplémentaires.
- plateforme de débarquement surélevée;
- lorsque la hauteur de la bordure n'est pas assez élevée pour les plateformes des transports accessibles (autobus/fourgonnette);
- béton ou asphalte d'au moins 6 po (150 mm) d'épaisseur avec bordure en béton et bordures abaissées à l'une ou l'autre des extrémités.
- un abri de protection contre les éléments en acier ou en bois pour l'aire de repos ou d'attente;
- au moins 5 pi 11 po sur 9 pi 10 po (1 800 mm sur 3 000 mm), avec fondation.
Stations de recharge accessibles pour les véhicules électriques
Les stations de recharge accessibles pour les véhicules électriques (VE) permettent aux conducteurs en situation de handicap d'en faire un usage indépendant, y compris les personnes dont la dextérité des mains, les différences de membres ou les amputations de membres sont limitées et qui doivent utiliser des commandes de conduite adaptatives.
Figure 30 : Station de recharge accessible pour les véhicules électriques – borne unique – au niveau du sol
Figure 30 – Version textuelle
- Présenté en plongée est le schéma d'une station de recharge accessible pour VE équipée d'une seule borne de recharge.
- Il y a un espace de stationnement accessible au centre de l'image, avec une allée d'accès à droite. Les coûts de l'espace de stationnement et de l'allée d'accès ne sont pas compris dans les coûts de la station de recharge pour VE accessible.
- À l'avant, à gauche et à l'arrière du stationnement accessible, il y a des zones d'accès marquées de bandes peintes en diagonale.
- Devant la zone d'accès avant, il y a la borne de recharge pour les VE, la signalisation et l'éclairage.
- La zone d'accès avant est couverte d'un abri de protection contre la pluie, la neige, etc.
- Étant donné que cette borne de recharge accessible pour les VE est au niveau du sol, il y a 1 butoir de roues dans le stationnement accessible et 2 poteaux de chaque côté de la borne de recharge pour VE.
Figure 31 : Station de recharge accessible pour les véhicules électriques – bornes multiples – au niveau du sol
Figure 31 – Version textuelle
- Présenté en plongée est le schéma d'une station de recharge accessible pour les VE équipée de 2 bornes de recharge.
- Il y a 2 espaces de stationnement accessibles au centre de l'image, avec une allée d'accès commune entre eux. Les coûts de l'espace de stationnement et de l'allée d'accès ne sont pas compris dans les coûts des stations de recharge pour les VE accessibles.
- À l'avant, à gauche et à l'arrière des espaces de stationnement accessibles, il y a des zones d'accès marquées de bandes peintes en diagonale.
- Devant la zone d'accès avant, il y a de l'éclairage, une borne de recharge pour les VE et un panneau indicateur par espace de stationnement accessible.
- La zone d'accès avant est couverte d'un abri de protection contre la pluie, la neige, etc.
- Étant donné que ces stations de recharge accessibles pour les VE sont au niveau du sol, il y a un butoir de roues dans chaque espace de stationnement accessible et 2 poteaux de chaque côté des bornes de recharge pour les VE.
Figure 32 : Station de recharge accessible pour les véhicules électriques – borne unique – inférieure au niveau du sol
Figure 32 – Version textuelle
- Présenté en plongée est le schéma d'une station de recharge accessible pour les VE équipée d'une seule borne de recharge.
- Il y a un espace de stationnement accessible au centre de l'image, avec une allée d'accès à droite. Les coûts de l'espace de stationnement et de l'allée d'accès ne sont pas compris dans les coûts de la station de recharge pour les VE accessible.
- À l'avant, à gauche et à l'arrière du stationnement accessible, il y a des zones d'accès marquées de bandes peintes en diagonale.
- Devant la zone d'accès avant, il y a la borne de recharge pour les VE, la signalisation et l'éclairage.
- La zone d'accès avant est couverte d'un abri de protection contre la pluie, la neige, etc.
- Étant donné que cette station de recharge accessible pour les VE est inférieure au niveau du sol, il y a un butoir de roues dans l'espace de stationnement accessible, 2 poteaux de chaque côté la borne de recharge pour VE et une bordure abaissée reliant la zone d'accès avant à la borne de recharge pour VE.
Figure 33 : Station de recharge accessible pour les véhicules électriques – bornes multiples – inférieure au niveau du sol
Figure 33 – Version textuelle
- Présenté en plongée est le schéma d'une station de recharge accessible pour VE équipée de plusieurs bornes de recharge.
- Il y a 2 espaces de stationnement accessibles au centre de l'image, avec une allée d'accès commune entre elles. Les coûts de l'espace de stationnement et de l'allée d'accès ne sont pas compris dans les coûts de la station de recharge pour VE accessible.
- À l'avant, à gauche et à l'arrière des espaces de stationnement accessibles, il y a des zones d'accès marquées de bandes peintes en diagonale.
- Devant la zone d'accès avant, il y a de l'éclairage, une borne de recharge pour VE et une signalisation par espace de stationnement accessible.
- La zone d'accès avant est couverte d'un abri de protection contre la pluie, la neige, etc.
- Étant donné que cette station de recharge accessible pour VE est inférieure au niveau du sol, il y a un butoir de roues dans chaque espace de stationnement accessible, 2 poteaux de chaque côté de chaque borne de recharge pour VE, et une bordure abaissée reliant la zone d'accès avant aux bornes de recharge pour VE.
Les stations de recharge accessibles pour véhicules électriques comprennent :
- des marques de surface dans de la peinture à contraste élevé pour la zone entourant la borne de recharge accessible pour VE;
- éléments en matière d'accessibilité de la borne de recharge pour VE (pas de toute la borne de recharge pour VE) (pour connaître ces éléments, voir la section ci-dessous « Comment choisir une borne de recharge accessible pour VE »);
- butoir de roues et poteaux pour protéger la borne de recharge des autres véhicules;
- 1 bordure abaissée si la station de recharge accessible pour VE est inférieure au niveau du sol.
- 1 panneau indicateur de borne de recharge pour VE accessible par borne de recharge.
Les éléments d'accessibilité facultatifs :
- surface des zones d'accès en béton ou en asphalte;
- éclairage;
- abri de protection en acier ou en bois couvrant la zone d'accès avant seulement.
- comprend un panneau de hauteur maximale.
Comment choisir une borne de recharge accessible pour VE * :
- Recherchez des chargeurs avec :
- enrouleur de câble de recharge :
- un enrouleur de câble de recharge aide à réduire le poids du câble si quelqu'un a de la difficulté à le transporter à son véhicule.
- force réduite nécessaire pour libérer la poignée du chargeur :
- s'assurer que le mécanisme de dégagement de la prise ne nécessite pas plus de 5 lb de pression.
- enrouleur de câble de recharge :
- Évitez les bornes de recharge avec :
- poignées parfaitement rondes :
- peut être difficile à saisir pour une personne ayant une incapacité liée à la mobilité.
- lumières clignotantes lumineuses :
- peuvent désorienter les gens (surtout pendant la nuit).
- poignées parfaitement rondes :
* Veuillez noter que les éléments ci-dessus pour le choix d'une borne de recharge accessible pour VE sont couverts par des coûts à taux fixe.
Autres éléments à considérer** :
- Recherchez des chargeurs avec :
- sortie de parole;
- commande de volume;
- directives en braille;
- chargeurs sans fil ou à induction à mesure qu'ils deviennent disponibles (il n'y a présentement aucun fabricant qui produit des chargeurs sans fil ou à induction accessibles).
** Veuillez noter que les éléments à considérer ci-dessus ne sont pas couverts par les coûts à taux fixe.
Cuisines accessibles
Figure 34 : Cuisine accessible – Plan général

- Source : Figure 35(f), CSA/ASC B652 : 23 Logements accessibles. © 2023 Association canadienne de normalisation.
Figure 34 – Version textuelle
- Le schéma d'une cuisine en L est présenté en plongée.
- Le long du mur de droite et du mur arrière se trouvent des armoires, avec des espaces vides pour les appareils électroménagers (lave-vaisselle, table de cuisson, réfrigérateur/congélateur, four à micro-ondes et four mural).
- Une personne en fauteuil roulant est à l'évier sans obstacle.
- Un îlot de cuisine de deux hauteurs différentes se trouve au centre de l'espace.
- Une personne en fauteuil roulant est assise à une table de salle à manger accessible. Il y a suffisamment d'espace autour de la table pour se déplacer.
Figure 35 : Schéma d’une cuisine accessible

- Source : Figure 35(a), CSA/ASC B652 : 23 Logements accessibles. © 2023 Association canadienne de normalisation.
Figure 35 – Version textuelle
- Le schéma d'une cuisine en L est présenté en trois dimensions, montrant la profondeur des différents éléments.
- Le long du mur latéral et du mur arrière se trouvent des armoires supérieures et inférieures, avec des espaces vides pour les appareils électroménagers (lave-vaisselle, table de cuisson, réfrigérateur/congélateur, four à micro-ondes et four mural).
- Il n'y a pas d'armoires inférieures sous l'évier et la table de cuisson, afin de permettre aux personnes en fauteuil roulant de rouler en dessous.
- Un îlot de cuisine de deux hauteurs différentes se trouve au centre de l'espace. Il n'y a pas d'armoires inférieures sous le comptoir de l'îlot, afin de permettre aux personnes en fauteuil roulant de rouler en dessous.
- Près de la cuisine, il y a une table et des sièges de salle à manger. Les pieds de la table n'empêchent pas une personne en fauteuil roulant de s'approcher de la table.
Figure 36a : Cuisine accessible - hauteurs et dégagements

- Source : Figure 35(d), CSA/ASC B652 : 23 Logements accessibles. © 2023 Association canadienne de normalisation.
Figure 36a – Version textuelle
- La perspective face aux armoires montre les hauteurs des différents éléments pour la moitié d'une cuisine en L (longueur d'un mur).
- De gauche à droite, il y a :
- un espace pour le lave-vaisselle;
- un évier sans obstacle avec protection pour les genoux contre la plomberie;
- une partie du comptoir sans armoires inférieures et avec des étagères ouvertes au-dessus;
- un espace pour la table de cuisson avec protection pour les genoux contre le câblage;
- un espace pour la hotte au-dessus de la table de cuisson;
- une partie pour les armoires supérieures et inférieures, y compris une étagère de travail coulissante;
- un espace pour un four mural.
Figure 36b : Cuisine accessible – hauteurs et dégagements

- Source : Figure 35(d), CSA/ASC B652 : 23 Logements accessibles. © 2023 Association canadienne de normalisation.
Figure 36b – Version textuelle
- Une perspective face aux armoires montre les hauteurs des différents éléments pour l'autre moitié d'une cuisine en L (longueur d'un mur).
- De gauche à droite, il y a :
- une partie pour les armoires supérieures et inférieures;
- un espace pour un four à micro-ondes à hauteur accessible dans les armoires inférieures;
- un espace pour le four mural avec des armoires supérieures au-dessus et des armoires inférieures au-dessous;
- un espace pour les armoires supérieures et inférieures (garde-manger);
- un espace pour un réfrigérateur/congélateur avec des armoires supérieures au-dessus;
- une partie pour des armoires supérieures et inférieures.
Une cuisine accessible comprend la finition d'une pièce d'environ 270 pi2 (25 m2). Le plancher de la cuisine comporte des zones dégagées permettant aux personnes utilisant des appareils de mobilité, comme un fauteuil roulant, de se déplacer. L'évier et la table de cuisson ont suffisamment d'espace en dessous pour que les personnes en fauteuil roulant puissent y insérer leurs genoux, ainsi que des panneaux amovibles pour les protéger contre l'alimentation en eau chaude de l'évier et le câblage de la table de cuisson. Le four est fixé au mur et dispose d'une étagère de travail extractible et résistante à la chaleur. Le four à micro-ondes se trouve sous le comptoir et est intégré dans les armoires inférieures afin d'être à une hauteur accessible pour les utilisateurs assis.
Les cuisines accessibles comprennent :
- un plancher antidérapant :
- éblouissement minimal, pas de motif visuel fort;
- couleurs contrastantes par rapport aux murs, aux armoires, aux appareils, etc.
- 30 pi (9100 mm) d'armoires avec des espaces pour les appareils :
- armoires supérieures : si elles sont situées à plus de 1 100 mm du sol, elles doivent être équipées d'un mécanisme de descente (manuel ou automatique);
- armoires inférieures : à tiroirs;
- poignées de tiroirs et de portes en forme de « D » et charnières à fermeture en douceur pour toutes les armoires.
- des comptoirs en quartz;
- un évier sans obstacle :
- évier en acier inoxydable sous le comptoir;
- robinet télescopique manuel ou automatique;
- indicateur de température qui limite la température de l'eau chaude à 49 degrés C pour éviter les brûlures aux utilisateurs souffrant de perte sensorielle;
- distributeur de savon mains libres.
- la plomberie pour l'évier et le lave-vaisselle;
- un éclairage optimisé (au-delà des exigences minimales du code) :
- un éclairage de travail au-dessus des comptoirs et de l'évier (750 lumens) et des plafonniers d'éclairage (300 lumens) pour le reste de la cuisine;
- un éclairage anti-éblouissement avec gradateur de lumière;
- commandes à hauteur accessible dans la pièce.
- des installations électriques optimisées (au-delà des exigences minimales du code) :
- des prises et circuits de plus grande capacité;
- du câblage pour l'installation d'appareils électroménagers.
- un système de CVCA optimisé (au-delà des exigences minimales du code) :
- une meilleure qualité de l'air;
- une absorption acoustique pour un indice minimum d’ITS 45 et CAP 40;Note de bas de page 1
- des commandes à hauteur accessible dans la pièce.
- des murs insonorisés et de la peinture de couleurs contrastantes :
- ceci ne comprend pas la construction de nouveaux murs, mais seulement l'insonorisation et de la peinture de couleur contrastantes pour les murs nouveaux ou existants;
- l’insonorisation pour un indice minimum d’ITS 42.Note de bas de page 1
- 2 panneaux avec texte, pictogrammes et braille :
- 1 panneau à la cuisine, et 1 panneau ailleurs qui dirige les gens vers la cuisine.
- les petits et gros appareils électroménagers ne sont PAS inclus (voir la section ci-dessous « Comment choisir des appareils électroménagers de cuisine accessibles » pour plus d'informations).
Éléments d'accessibilité facultatifs :
- îlot de cuisine :
- option 1) entièrement à hauteur réduite;
- option 2) à 2 hauteurs :
- toute la longueur d'un côté de l'îlot à une hauteur plus basse pour accueillir les utilisateurs assis;
- l'autre moitié de l'îlot est plus haute pour permettre aux utilisateurs de se tenir debout.
- espace libre (pas d'armoires inférieures) sous le comptoir;
- éclairage de travail au-dessus du comptoir (750 lumens).
- porte automatique insonorisée :
- cadre en acier isolé;
- ensemble de quincaillerie de porte;
- dispositif et des commandes automatiques;
- connecteurs de fil électriques;
- transition sans obstacle;
- peinture de couleur contrastée.
- infrastructure/câblage Wi-Fi pour les appareils intelligents :
- les appareils intelligents comprennent ceux qui peuvent être contrôlés à partir d'un appareil mobile ou à commande vocale, et qui sont dotés de fonctions de sécurité (par exemple, arrêt automatique, refroidissement au toucher, etc.);
- l'infrastructure et le câblage comprennent 1 prise de données, 8 m de câble vers la salle de données et 1 routeur sans fil;
- ceci suppose que l'installation/le bâtiment dispose déjà d'une connexion Wi-Fi.
- tables et sièges de salle à manger accessibles :
- au moins 1 siège accessible avec dossier par table;
- situés sur un chemin accessible sans obstacle, avec un espace libre d'au moins 2000 mm autour de tous les côtés de la table.
Comment choisir des appareils électroménagers de cuisine accessibles :
Les gros et les petits électroménagers ne sont pas couverts par les coûts à taux fixes. Le coût de ces appareils est à votre charge. La liste ci-dessous comprend des éléments à prendre en compte lors du choix d'appareils accessibles.
- Généralités :
- rechercher des appareils intelligents qui peuvent être contrôlés à partir d'un appareil mobile ou à commande vocale (qui peuvent être contrôlés par des assistants virtuels);
- inclure des dispositifs de sécurité (par exemple, arrêt automatique, refroidissement au toucher, etc.);
- inclure des commandes tactiles à fort contraste, installées sur le devant, avec des caractères et des pictogrammes de grande taille.
- Réfrigérateur/congélateur :
- grand format, soit côte à côte OU congélateur intégré comme tiroir coulissant au bas du réfrigérateur;
- les congélateurs intégrés en haut du réfrigérateur ne sont pas à portée de main pour les utilisateurs assis.
- des capacités « intelligentes » supplémentaires, telles que :
- des caméras et des capteurs internes pour surveiller les aliments en temps réel et recevoir des alertes lorsqu'ils sont en rupture de stock ou périmés;
- intégration de la maison intelligente pour créer des routines ou des alertes (aide pour les personnes atteintes de démence, de troubles de la mémoire, etc.).
- grand format, soit côte à côte OU congélateur intégré comme tiroir coulissant au bas du réfrigérateur;
- Table de cuisson :
- l'induction est l'option la plus sûre, plutôt que l'électricité ou le gaz;
- commandes situées devant ou à côté de la surface chaude;
- installée sur le comptoir, avec le four mural séparé.
- Four mural :
- four mural encastré, séparé de la table de cuisson;
- porte pivotante latérale pour les utilisateurs assis;
- autonettoyant pour faciliter le nettoyage par les utilisateurs dont la force, la mobilité ou la dextérité sont limitées.
- Hotte de cuisine :
- commandes accessibles ou par l'entremise d'une télécommande.
- Lave-vaisselle :
- porte pivotante latérale OU tiroir pour les utilisateurs assis;
- commandes situées en haut ou sur le devant de la porte;
- fonction « silence » pour réduire le bruit dans la cuisine;
- détection des fuites d'eau pour éviter les surfaces glissantes.
- Four à Micro-ondes :
- situé à une hauteur accessible (situé sur le comptoir ou intégré dans l'armoire inférieure au lieu de l'armoire supérieure)
- installation d'une surface de réception d'au moins 381 mm sur 406 mm sur la surface adjacente du comptoir.
- Robinet de remplissage :
- envisager d'inclure un robinet de remplissage au-dessus de la table de cuisson lorsque celui-ci ne peut pas être placé à côté de l'évier :
- permet aux utilisateurs dont la force, la mobilité ou la dextérité sont limitées de remplir les casseroles sans avoir à les transporter jusqu'à la table de cuisson lorsqu'elles sont pleines.
- envisager d'inclure un robinet de remplissage au-dessus de la table de cuisson lorsque celui-ci ne peut pas être placé à côté de l'évier :
Fontaines d'eau accessibles et stations de lavage des mains accessibles
Les fontaines d'eau accessibles doivent être situées le long d'un chemin sans obstacle, dans des alcôves pour éviter de bloquer le chemin. Veillez à ce que les fontaines et les commandes soient de couleur contrastante par rapport à leur environnement, afin de faciliter la perception de la profondeur pour les personnes ayant une déficience visuelle. Les commandes automatiques sont préférables aux commandes manuelles, afin d'améliorer l'accessibilité pour les personnes ayant une mobilité ou une dextérité réduite. Les fontaines extérieures doivent être situées à moins de 15 m d'un bâtiment chauffé afin d'éviter le gel des tuyaux.
Figure 37 : Fontaine intérieure – murale versus autonome

- Source : Figure 39(a), CSA/ASC B651 : 23 Conception accessible pour l’environnement bâti. © 2023 Association canadienne de normalisation.
Figure 37 – Version textuelle
- Un schéma en trois dimensions montre les différences entre une fontaine murale intérieure et une fontaine autonome.
- La fontaine murale est montée à une hauteur accessible, avec un espace vide en dessous pour laisser de la place aux genoux des utilisateurs de fauteuils roulants. Les commandes se trouvent sur le devant et les deux côtés de la fontaine.
- La fontaine autonome est suffisamment basse pour que le bec soit à une hauteur accessible pour les utilisateurs assis, et la commande se trouve sur le devant de la fontaine.
- Il y a suffisamment d'espace libre (1 390 mm sur 820 mm) sur le sol devant la fontaine pour que les personnes utilisant des appareils de mobilité puissent s'approcher et se déplacer.
Figure 38 : Fontaine intérieure – fontaine avec station de remplissage de bouteille versus station de remplissage de bouteille seule

- Source : Figure 39(a), CSA/ASC B651 : 23 Conception accessible pour l’environnement bâti. © 2023 Association canadienne de normalisation.
Figure 38 – Version textuelle
- Un schéma en trois dimensions montre les différences entre une fontaine intérieure murale avec station de remplissage de bouteille intégrée et une station de remplissage autonome.
- La fontaine avec station de remplissage de bouteille est montée à une hauteur accessible, avec un espace vide en dessous pour laisser de la place aux genoux des utilisateurs de fauteuils roulants. Les boutons-poussoirs se trouvent sur le devant et les deux côtés de la fontaine, et la station de remplissage de bouteille est commandée automatiquement.
- La station de remplissage de bouteille est autonome, commandée automatiquement, et elle est suffisamment basse pour que le bec soit à une hauteur accessible pour les utilisateurs assis.
- Il y a suffisamment d'espace libre (1 390 mm sur 820 mm) sur le sol devant les fontaines pour que les personnes utilisant des appareils de mobilité puissent s'approcher et se déplacer.
Les fontaines d'eau intérieures accessibles comprennent :
- une fontaine d'eau intérieure (murale ou autonome) ou fontaine d'eau avec station de remplissage de bouteille, de couleur contrastante par rapport à l'environnement, avec commande automatique ou par bouton-poussoir;
- 2 panneaux avec texte, pictogrammes et braille.
- 1 panneau à la fontaine, et 1 panneau ailleurs qui dirige les gens vers la fontaine.
Éléments d'accessibilité facultatifs :
- éclairage à 300 lumens.
Figure 39 : Fontaine extérieure – fontaine avec station de remplissage de bouteille versus fontaine seule

Figure 39 – Version textuelle
- Un schéma en trois dimensions montre les différences entre une fontaine d'eau extérieure avec station de remplissage de bouteille intégrée et une fontaine d'eau extérieure autonome. Les deux fontaines sont clouées au sol.
- La fontaine d'eau extérieure avec station de remplissage de bouteille est en forme de L, la fontaine d'eau formant le bas du L et la station de remplissage de bouteille formant le côté gauche du L.
- Les becs de la fontaine et de la station de remplissage de bouteille sont à des hauteurs accessibles pour les utilisateurs assis. La fontaine d'eau est placée de manière à ce qu'une personne puisse utiliser la station de remplissage de bouteille et qu'une autre personne puisse utiliser la fontaine d'eau en même temps.
- La fontaine d'eau extérieure autonome est suffisamment basse pour que le bec soit à une hauteur accessible pour les utilisateurs assis, et la commande se trouve à l'avant de la fontaine.
- Il y a suffisamment d'espace libre (1 390 mm sur 820 mm) au sol devant la station de remplissage de bouteille et la fontaine d'eau pour que les personnes utilisant des dispositifs de mobilité puissent s'approcher et se déplacer.
Figure 40 : Fontaine extérieure – fontaine d’eau avec station de remplissage de bouteille et bassin pour les animaux d’assistance

Figure 40 – Version textuelle
- Une vue tridimensionnelle montre une fontaine extérieure avec une station de remplissage de bouteille et un bassin pour les animaux d'assistance installée au sol.
- La fontaine extérieure avec station de remplissage de bouteille est en forme de L, la fontaine d'eau formant le bas du L et la station de remplissage de bouteille formant le côté gauche du L.
- Les becs de la fontaine et de la station de remplissage de bouteille sont à des hauteurs accessibles pour les utilisateurs assis. La fontaine d'eau est placée de manière à ce qu'une personne puisse utiliser la station de remplissage de bouteille et qu'une autre personne puisse utiliser la fontaine d'eau en même temps.
- Le bassin pour les animaux d'assistance est proche du sol et placé de manière à faire face à la station de remplissage de bouteille.
- Il y a suffisamment d'espace libre (1 390 mm sur 820 mm) au sol devant la station de remplissage de bouteille et la fontaine d'eau pour que les personnes utilisant des dispositifs de mobilité puissent s'approcher et se déplacer.
Les fontaines extérieures accessibles comprennent :
- une fontaine d’eau extérieure ou une fontaine d’eau avec station de remplissage de bouteille ou une fontaine d’eau avec station de remplissage de bouteille et bassin pour les animaux d’assistance, de couleur contrastante par rapport à l'environnement, avec commandes automatiques ou à bouton-poussoir;
- 2 panneaux avec texte, pictogrammes et braille :
- 1 panneau à la fontaine, et 1 panneau ailleurs qui dirige les gens vers la fontaine.
Figure 41 : Station de lavage des mains

- Source : Figure 43(a) et 43(b), CSA/ASC B651 : 23 Conception accessible pour l’environnement bâti. © 2023 Association canadienne de normalisation.
Figure 41 – Version textuelle
- Un schéma en trois dimensions montre un lavabo mural, avec robinet et distributeur de savon.
- Un espace est prévu sous l'évier pour permettre à une personne utilisant un appareil de mobilité d’y poser ses genoux. Les tuyaux isolés de l'évier protègent les genoux de l'eau chaude qui circule.
- Il y a suffisamment d'espace libre (1 390 mm sur 820 mm) au sol devant le lavabo pour que les personnes utilisant des appareils de mobilité puissent s'approcher et se déplacer.
L'évier dispose d'un espace suffisant en dessous pour que les personnes à mobilité réduite puissent y insérer leurs genoux, ainsi que d'une protection contre l’eau chaude qui circule. Si vous installez deux ou plusieurs lavabos en rangée, l’axe central de chaque évier doit être séparé d'au moins 820 mm.
Les stations de lavage des mains accessibles comprennent :
- un évier monté au mur sans obstacle;
- un robinet mains libres avec limite de température de 49 degrés C;
- une protection des genoux contre la plomberie;
- une protection murale (dosseret de 100 mm);
- un distributeur de savon mains libres, fixé au comptoir;
- un distributeur de serviettes mains libres, fixé au mur;
- un éclairage de 300 lumens, avec des commandes montées à une hauteur accessible;
- 2 panneaux avec texte, pictogrammes et braille :
- 1 panneau à la station, et 1 panneau ailleurs qui dirige les gens vers la station.
Salles multifonctionnelles accessibles
Figure 42 : Salle multifonctionnelle accessible – Plan général

Figure 42 – Version textuelle
- Le schéma d'une salle multifonctionnelle rectangulaire de 20 m sur 10 m (200 m2) est présenté en plongée.
- Sur le côté gauche de la salle, 12 tables rondes sont disposées en grille. Deux de ces 12 tables sont accessibles, avec des zones dégagées autour des sièges pour les personnes en fauteuil roulant.
- Sur le côté droit de la salle, il y a une zone de présentation de 40 m2 avec une armoire accessible à proximité pour ranger le matériel audio/visuel, et un podium accessible. Des escaliers et une rampe mènent à la scène.
- Les quatre murs de la salle sont construits avec une isolation acoustique et un traitement des murs acoustique, et le plafond est doté d'un traitement acoustique.
- Il y a deux portes accessibles pour entrer et sortir de la salle, et un panneau à l'extérieur de la salle pour l'identifier.
Les salles multifonctionnelles accessibles peuvent varier en taille entre 25 m2 et 200 m2. Le schéma ci-dessus montre un exemple de configuration pour la plus grande taille de salle disponible selon les coûts à taux fixes (200 m2). Il est important de consulter des professionnels certifiés, tels que des architectes et des ingénieurs en mécanique/électricité, pour optimiser les systèmes d'insonorisation dans l'espace. Les honoraires des professionnels sont inclus dans les coûts à taux fixes.
Les salles multifonctionnelles accessibles comprennent :
- un plancher antidérapant :
- un éblouissement minimal, pas de motifs visuels fort;
- couleurs contrastantes par rapport aux murs, aux portes, etc.
- de la peinture pour les murs :
- des couleurs contrastantes par rapport aux planchers, aux portes, etc.
- porte(s) insonorisée(s) :
- une structure en acier isolée;
- la quincaillerie de porte;
- un mécanisme automatique avec des commandes;
- un branchement électrique;
- une transition sans obstacle;
- de la peinture de couleur contrastante;
- le nombre de portes (1 ou 2) sera automatiquement calculé en fonction de la taille de la pièce.
- un éclairage optimisé (au-delà des exigences minimales du code) :
- éclairage de la zone de présentation contrôlé indépendamment de l'éclairage général dans le reste de la salle;
- tout l'éclairage doit être anti-éblouissant et réglable entre 100 et 750 lumens;
- les commandes à l'intérieur de la pièce à hauteur accessible.
- des installations électriques optimisées (au-delà des exigences minimales du code) :
- des prises et des circuits de plus grande capacité;
- câblage permettant d'installer l'équipement audio/visuel depuis une position assise, à l'aide d'une télécommande ou par commande vocale.
- un système de CVCA optimisé (au-delà des exigences minimales du code) :
- une meilleure qualité de l'air;
- une absorption acoustique pour un indice minimum de 45 pour l'ITS et 40 pour le CAP;Note de bas de page 1
- des commandes à hauteur accessible dans la pièce.
- 2 panneaux de signalisation avec texte, pictogramme et braille :
- 1 panneau à l'extérieur de la pièce, et 1 panneau placé ailleurs pour guider les utilisateurs vers la salle.
Éléments d'accessibilité facultatifs :
- l'isolation acoustique pour les murs :
- n'inclut pas la construction de nouveaux murs, mais seulement l'isolation acoustique pour un indice minimum de 45 pour l'ITS;Note de bas de page 1
- les revêtements acoustiques de plafond :
- option 1) dalles de plafond acoustique suspendues en forme d'ossature, couvrant 100 % de la surface du plafond;
- option 2) baffles pour plafond acoustique suspendu, couvrant environ 50 % de la surface du plafond;
- avec l'une ou l'autre de ces options, il faut s'assurer que le revêtement acoustique du plafond est conforme aux normes CRB 0,8 et CAP 40.Note de bas de page 1
- les revêtements acoustiques des murs :
- des panneaux muraux acoustiques couvrant environ 50 % de la surface de vos murs;
- assurez-vous que les panneaux ont un indice minimum de 0,8 CRB.Note de bas de page 1
- un microphone et des haut-parleurs :
- 1 microphone sans fil;
- 1 amplificateur;
- 1 émetteur/récepteur;
- des haut-parleurs fixés au plafond (quantité en fonction de la superficie de la pièce).
- un système de sonorisation assistée avec affichage en texte, pictogrammes et braille :
- option 1) un ensemble de casques d'écoute sans fil pour groupe :
- comprend des écouteurs et un émetteur d'une portée minimale de 45 m;
- le calculateur des taux fixes limite le nombre de casques d'écoute à 20 % du nombre maximum d'occupants de votre salle multifonctionnelle, en fonction de la taille de la salle;
- fonctionne mieux pour les personnes qui bénéficieraient d'une amélioration de l'audition mais qui ne portent pas d'appareil auditif (par exemple, prothèse auditive, implant cochléaire, etc.);
- notez que les casques d'écoute partagés doivent être désinfectés après chaque utilisation.
- option 2) système d'induction par boucle :
- relie une source sonore (par exemple, un microphone, une télévision) directement à l'appareil auditif d'une personne via une boucle d'induction à fréquence audio;
- implique l'installation d'un câble en forme de boucle autour du périmètre de la zone d'assise de votre salle multifonctionnelle;
- plus pratique pour les personnes utilisant des appareils auditifs, car elles peuvent personnaliser leur niveau sonore;
- le nombre de personnes pouvant utiliser le système d'induction par boucle n'est pas limité;
- les coûts d'un système de modulation des fréquences ne sont pas couverts par cette option, car une boucle d'induction à fréquence audio est le système de boucle auditive préféré pour les salles multifonctionnelles.
- option 1) un ensemble de casques d'écoute sans fil pour groupe :
- une armoire pour ranger le matériel audio/visuel :
- uniquement disponible si un microphone et des haut-parleurs ou un système de sonorisation assistée sont ajoutés à votre projet;
- réduit le risque de trébucher sur les câbles (permet un déplacement sans obstacle);
- 1 220 mm de largeur par 457 mm de hauteur par 610 mm de profondeur;
- des matériaux stratifiés de plastique;
- des œillets (points d'accès) pour que les câbles puissent sortir de l'armoire et se brancher sur des prises ou des équipements;
- des évents pour permettre à la chaleur des équipements audio/visuels de s'échapper;
- des poignées de tiroir/porte en forme de « D » et charnières à fermeture douce.
- une scène accessible :
- nécessite une salle d'une superficie minimale de 150 m2;
- la scène mesure 40 m2;
- la hauteur de la scène se situe entre 305 mm et 457 mm au-dessus du sol;
- comprend des escaliers avec marches menant du plancher jusqu'à la scène;
- comprend une rampe entre le plancher et la scène (entre 6,1 m et 9,14 m de long);
- une surface antidérapante pour la scène, les escaliers et la rampe;
- des bandes d'avertissement tactiles en haut des escaliers et en haut et en bas de la rampe.
- des tables accessibles :
- la surface de la table se situe entre 730 mm et 860 mm au-dessus du sol;
- l'espace sous la table pour permettre à un utilisateur de fauteuil roulant de s'y asseoir (820 mm de largeur par 685 mm de hauteur et par 480 mm de profondeur);
- hauteur réglable avec raccordement électrique.
- sièges accessibles :
- hauteur du siège entre 430 mm et 483 mm au-dessus du sol;
- dossier inclus;
- hauteur réglable avec raccordement électrique.
- podium accessible :
- hauteur réglable avec raccordement électrique.
Communication inclusive :
- envisagez d'ajouter un système de sous-titrage en direct dans votre salle multifonctionnelle afin d'améliorer l'accessibilité pour les personnes sourdes ou malentendantes;
- un système de sous-titrage en direct comprendrait :
- 1 ou 2 écrans pour afficher les sous-titres
- différentes options pour les sous-titres :
- sous-titrage manuel par un professionnel;
- un codeur/décodeur câblé;
- logiciel de sous-titrage (notez que certaines applications offrent un sous-titrage en direct généré automatiquement, par exemple Zoom, Microsoft Teams, Google Chrome, etc.).
- les écrans peuvent également être utilisés pour :
- afficher des graphiques ou d'autres moyens de communication visuelle pour les personnes qui bénéficieraient d'une communication non verbale;
- afficher des visuels grand format pour les personnes malvoyantes;
- afficher un interprète en langue des signes qui fournit des services virtuellement.
Notez que si vous souhaitez inclure les éléments de communication inclusive dans votre projet, ils ne sont pas couverts par les coûts à taux fixe mais peuvent être admissibles à un financement. Veuillez traiter ces éléments comme « Autres activités » dans le calculateur de taux fixe et suivre les exigences décrites dans le guide du demandeur pour les activités non soumises à un taux fixe.
Autres éléments à considérer :
- assurez-vous que le parcours de déplacement dans la salle est sans obstacle en évitant les obstructions au sol ou fixées au mur;
- si votre salle multifonctionnelle est dotée de fenêtres, éliminez les reflets ou autres réflexions de la lumière sur les vitres en installant des couvre-fenêtres ou d'autres traitements;
- réservez des sièges près de l'avant de la salle (le plus près de la scène ou de la zone de présentation) pour les personnes sourdes, malentendantes ou malvoyantes;
- attribuez les sièges de l'allée aux personnes qui sont accompagnées d'un animal d'assistance.
Notez que les éléments à considérer ci-dessus ne sont pas couverts par les coûts à taux fixe.